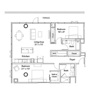
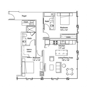
Floor Plan Details
| Beds | Baths | Sq Ft | Rent |
|---|---|---|---|
| 2 | 2 | 1303 | $3875 – $4205 |
Pricing and special offers valid for new residents only. Pricing and availability subject to change at any time.
Available Units
- 39161796 -
Apt # Rent Sq Ft Available Date Interested? 0603 3910 1303 11/10/25 Apply Now



