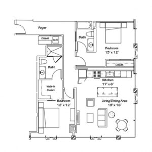
Floor Plan Details
| Beds | Baths | Sq Ft | Rent |
|---|---|---|---|
| 2 | 2 | 1370 | $4679 – $4995 |
Pricing and special offers valid for new residents only. Pricing and availability subject to change at any time.
Available Units
- 39162019 -
Apt # Rent Sq Ft Available Date Interested? 1803 4895 1370 Now Available Apply Now



